Magacin
 

Magacin u Kraljevića Marka je projekat Doma omladine Beograda pokrenut 2007. godine. Na osnovu raspisanog konkursa za umetničke asocijacije i organizacije koje svoju delatnost obavljaju u oblasti kulture i umetnosti, izabrano je 5 asocijacija i organizacija. Njima je ustupljen ovaj prostor Doma Omladine za pripremu i realizaciju kulturnih i umetničkih projekata. Prostor veličine oko 1200 m2 uključuje kancelarije i izložbene prostore. U Magacinu trenutno funkcionišu: ProArtOrg, SEEcult – Portal za kulturu jugoistočne Evrope, Stanica – Servis za savremeni ples, nKA - Nezavisna Kulturna Asocijacija, TkH - TeorijaKojaHoda i izdavačka kuća Rende.

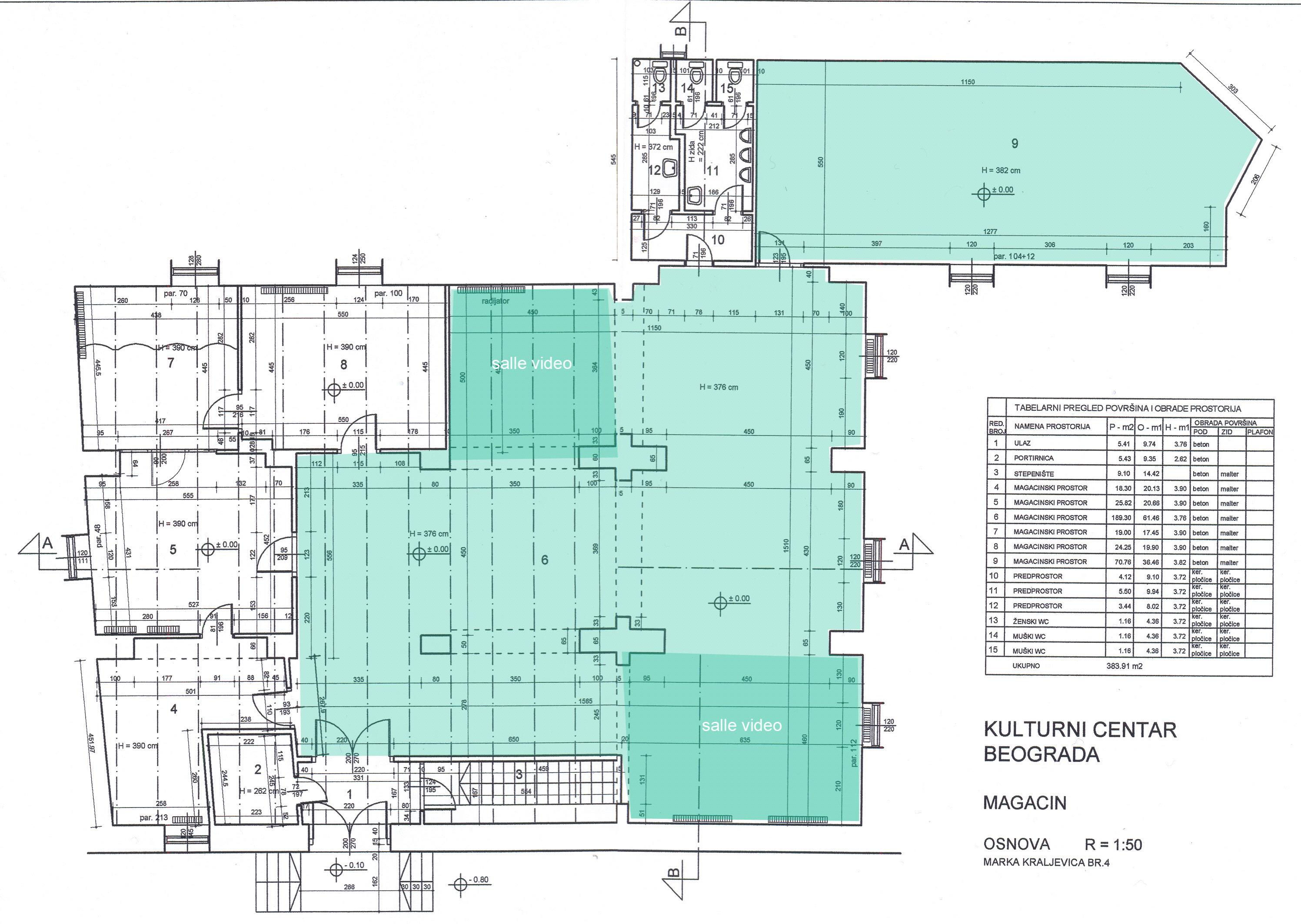
Izložbeni prostor ima 3 nivoa. Trenutno je u upotrebi samo prizemlje, površine oko 190 m2. Sastoji se od velikog otvorenog izložbenog prostora i 2 manje zatvorene video sale (prostor br. 6 na arhitektonskom nacrtu).

Adresa:

Magacin u Kraljevića Marka
Kraljevića Marka 4
11000 Beograd
Republika Srbija

magacin scheme